Lawrenny Lodge, Aberamffra Road, Barmouth, Gwynedd, LL42 1SU

Ref: Lot 34

Loading the bidding panel...

Registration Guide

Finance available on this property

Contact agent


Town & Country Property Auctions NW, MW, Oswestry & Chester
Town & Country Property Auctions NW, MW, Oswestry & Chester

Unconditional (Buyer's Premium)


UNCONDITIONAL LOT Buyers Premium Applies Upon the fall of the hammer, the Purchaser shall pay a 5% deposit and a 3%+VAT (subject to a minimum of £5,000+VAT) buyers premium and contracts are exchanged. The purchaser is legally bound to buy and the vendor is legally bound to sell the Property/Lot. The auction conditions require a full legal completion 56 days following the auction (unless otherwise stated).

Description

LOCATION
The property is located in a tranquil seaside setting by the iconic Barmouth bridge, benefitting from striking sea views over the Mawddach estuary, and the stunning coastal landscape.
Walking distance to town centre for events, amenities and beach life. Convenient driving distance of Cader Idris, Eryri (Snowdonia) National Park and with a multitude of scenic walks right on the doorstep.

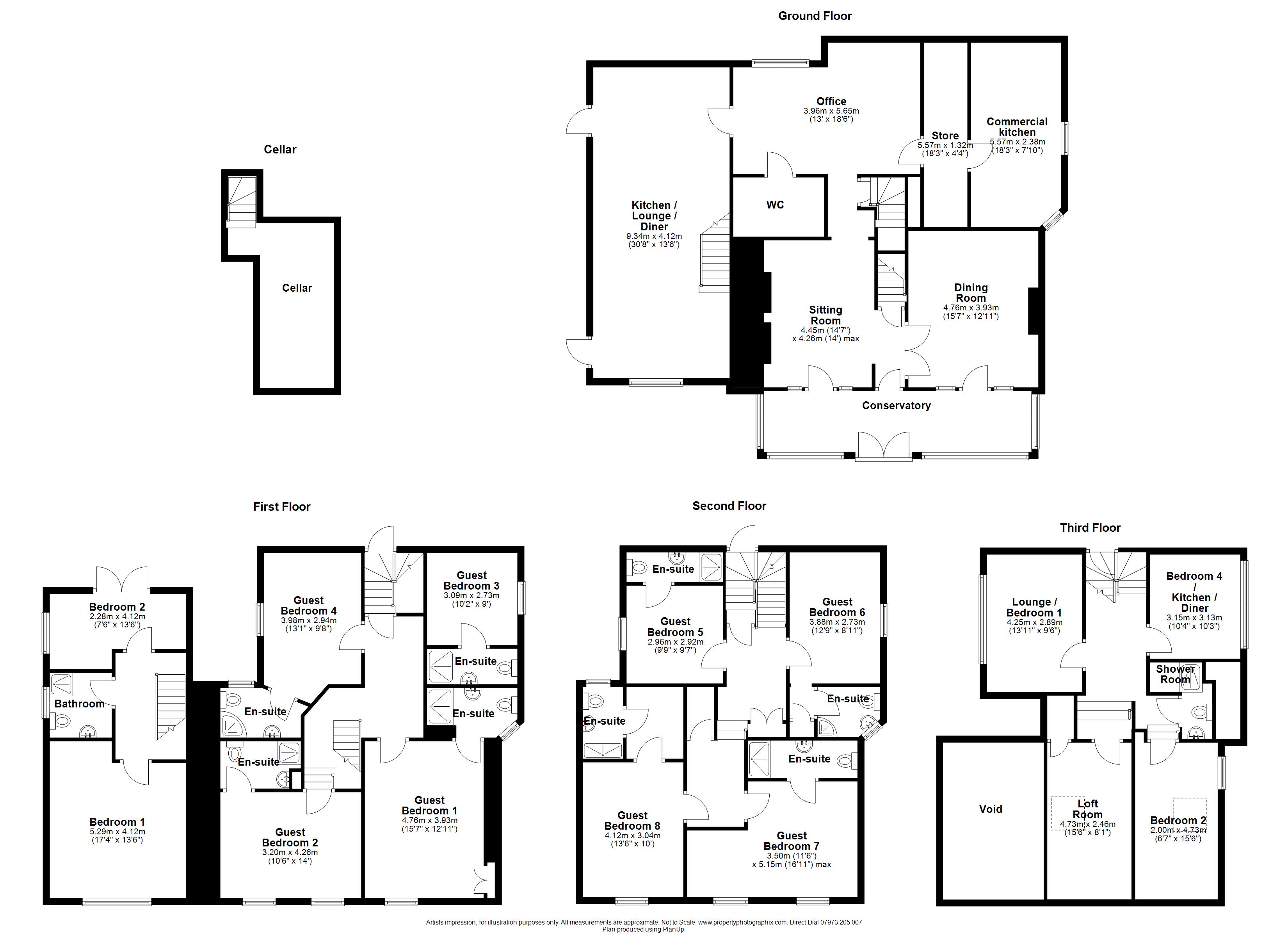
ACCOMMODATION
Existing B&B
8 en-suite double letting rooms, all of which are presented immaculately and are fully furnished. Dining room, reception/lounge, conservatory and a private commercial kitchen. Large store room, office/utility area, staff w/c, and a large fully tanked cellar/workshop.

Further Potential
4 large rooms plus a shower room on the third floor and a newly built modern 2 bedroom and 1 bathroom owner's annexe offering opportunity to expand the business further, subject to consents.
The adjoining owner's annexe is built with planning permission but does require some minor work to be completed in accordance with building regs.
Outside - A highly sought after large car park with potential for a seating area or further car parking.

The Auctioneers have been advised that the property is connected to mains water, electricity and drainage. Heating in the B&B is via mains gas, with electric radiators and a wood burning stove in the ground floor public areas. There is wet underfloor heating throughout the ground floor of the owner's annexe and in the office/utility area and staff w.c. There is electric underfloor heating in the first floor bathroom in the annexe.

. 5 Year Electrical installation Condition Report Prepared In 2024
. New Electrical Wiring NAPIT Certified In 2024
. Vaillant Gas Boiler Serviced Annually
. 2 Brand New Heating Vessels (Unvented Heating System Installed 2024)
. BS5839:1 Category L2 Fire Alarm System. Fire Risk Assessment Included Within Legal Pack
.

VIEWINGS HIGHLY RECOMMENDED BY APPOINTMENT ONLY VIA TOWN AND COUNTRY PROPERTY AUCTIONS.
Don’t miss out on this opportunity of a wonderful life by the Sea.

Bullets

. Fully Equipped And Fully Furnished 8 Bedroom B&B, All en-Suite, Ready To Operate From Day One
. Substantial Mixed-Use Building (Commercial And Residential) In Stunning Coastal Location
. Adjoining Modern Owner's Accommodation With Captivating Sea Views
. Well Established And Much Liked B&B Having Returning Custom And Great Reputation
. Operated As A Lifestyle Business, Under VAT Threshold, Takings re-Invested In Property
. Development Potential In The Business To Expand The Business Further (Subject To Consents)
. Large On-Site Car Park
. 56 Day Completion

Tenure

Freehold

Buyers Premium

* Plus 3% Buyers Premium plus VAT

Pre Auction Offers Are Considered

The seller of this property may consider a pre-auction offer prior to the auction date.  All auction conditions will remain the same for pre-auction offers which include but are not limited to, the special auction conditions which can be viewed within the legal pack, the Buyer’s Premium, and the deposit.  To make a pre-auction offer we will require two forms of ID, proof of your ability to purchase the property and complete our auction registration processes online.  To find out more information or to make a pre-auction offer please contact us.

Special Conditions

Any additional costs will be listed in the Special Conditions within the legal pack and these costs will be payable on completion. The legal pack is available to download free of charge under the ‘LEGAL DOCUMENTS’.  Any stamp duty and/or government taxes are not included within the Special Conditions within the legal pack and all potential buyers must make their own investigations.

Material Information

Material information will be provided within the legal pack- to download visit our website tcpa.co.uk.

Auctioneer Notes

The vendor reserves the right to withdraw the property for sale before the auction end date. Cash buyers or pre-approved mortgages/finance only.

Key Feature 1

Fully Equipped 8 Bedroom En-Suite B&B

Key Feature 2

Stunning Coastal Location


* The Guide Price given is an indication as to where the Reserve is currently set. The Reserve is the minimum price that the auctioneer is authorised by the vendor to sell the property for. It is subject to change throughout the marketing period. Where the Guide Price is a single figure, the current Reserve will not be more than 10% above that single figure, and where a price range is given (i.e. £50,000 - £55,000), the Reserve will not exceed the upper level of the range. It is not necessarily what the auctioneer expects it will sell for.

We would like to point out that all measurements, floor plans and photographs are for guidance purposes only (photographs may be taken with a wide angled/zoom lens), and dimensions, shapes and precise locations may differ to those set out in these sales particulars which are approximate and intended for guidance purposes only.

These particulars, whilst believed to be accurate are set out as a general outline only for guidance and do not constitute any part of an offer or contract. Intending purchasers should not rely on them as statements of representation of fact, but must satisfy themselves by inspection or otherwise as to their accuracy. No person in this firms' employment has the authority to make or give any representation or warranty in respect of the property.

Viewing: Due to the nature and condition of auction properties, the auctioneers highlight the potential risk that viewing such property carries and advise all to proceed with caution and take necessary requirements to ensure their own safety whist viewing any lots offered. Viewings are conducted entirely at the potential buyers own risk, these properties are not owned or controlled by Town & Country Property Auctions and the auctioneers will not be held liable for loss or injury caused while viewing or accessing the lot. Due to the nature of some auction properties, electricity may not be turned on, therefore viewing times are restricted. Viewers will need to bring their own lighting/ ladders if wanting to inspect cupboards, cellars and roof spaces. Some viewings are carried out by third party agents and we will endeavour to give appropriate notice should the published viewing time change. Town & Country Property Auctions will not be liable for any costs or losses incurred due to viewing cancellations or no shows.

All auctioneer fees and deposits stated are non-refundable. The deposit will be applied toward the final purchase price. Auctioneer fees, while not contributing to the purchase price, will still be included in the total chargeable consideration of the property when calculating Stamp Duty Land Tax, Land Transaction Tax, or Land and Buildings Transaction Tax (as applicable depending on whether the property is located in England, Wales, or Scotland).

Register for auction alerts

By subscribing here you agree to receive relevant emails, news and updates from Town & Country Property Auctions. You can unsubscribe at any time.

Register for auction alerts

Selling

No fuss, fast & free*

Town and Country offer a free selling service to a growing number of people choosing to sell their property quickly and easily through auction.

*Contact individual regions for cost

Buying

How to bid

Our buying at auction guide will help you throughout the process providing you with guidance to confidently secure your purchase.