This exquisite freehold four-bedroom split level apartment located in the heart of Chester city centre is accessed directly from the famous Chester Rows via its own private entrance and is brought to the market with no onward chain, offering a combination of privacy with easy access to all of Chester's facilities. Offered With Vacant Possession. SOLD WITH VACANT POSSESSION and the title also includes the freehold of the ground floor which is subject to a long leasehold to a beauty salon.
In recent years, the property has undergone a full renovation and re-configuration including a full re-wire, new heating system, redecoration, and all new flooring, plaster and woodwork.
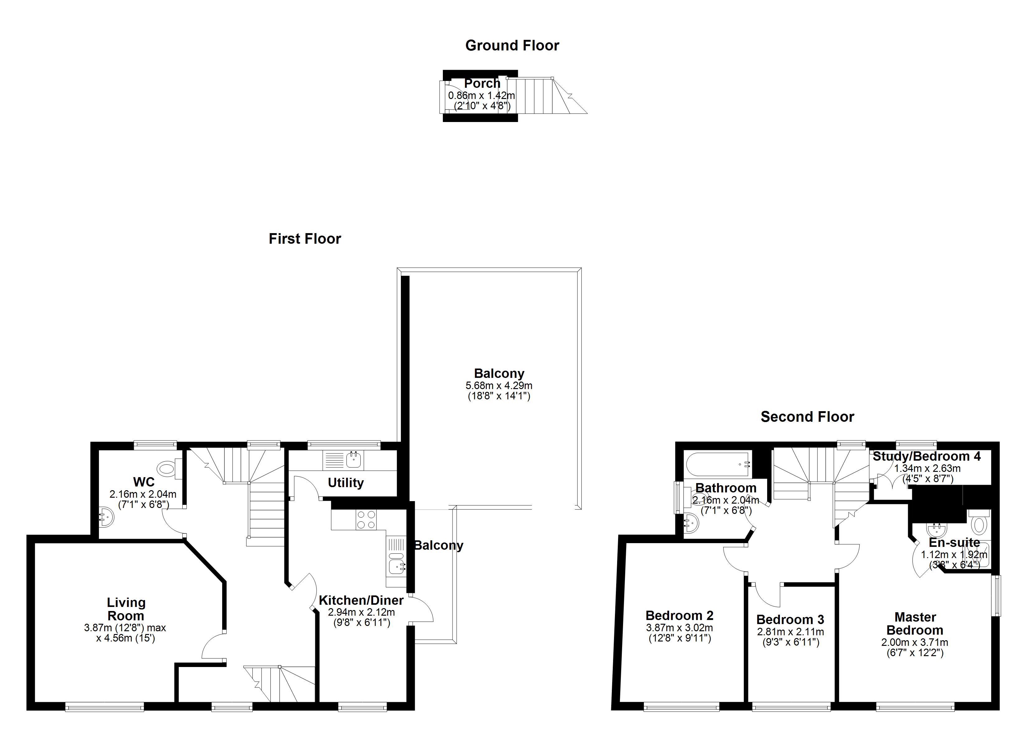
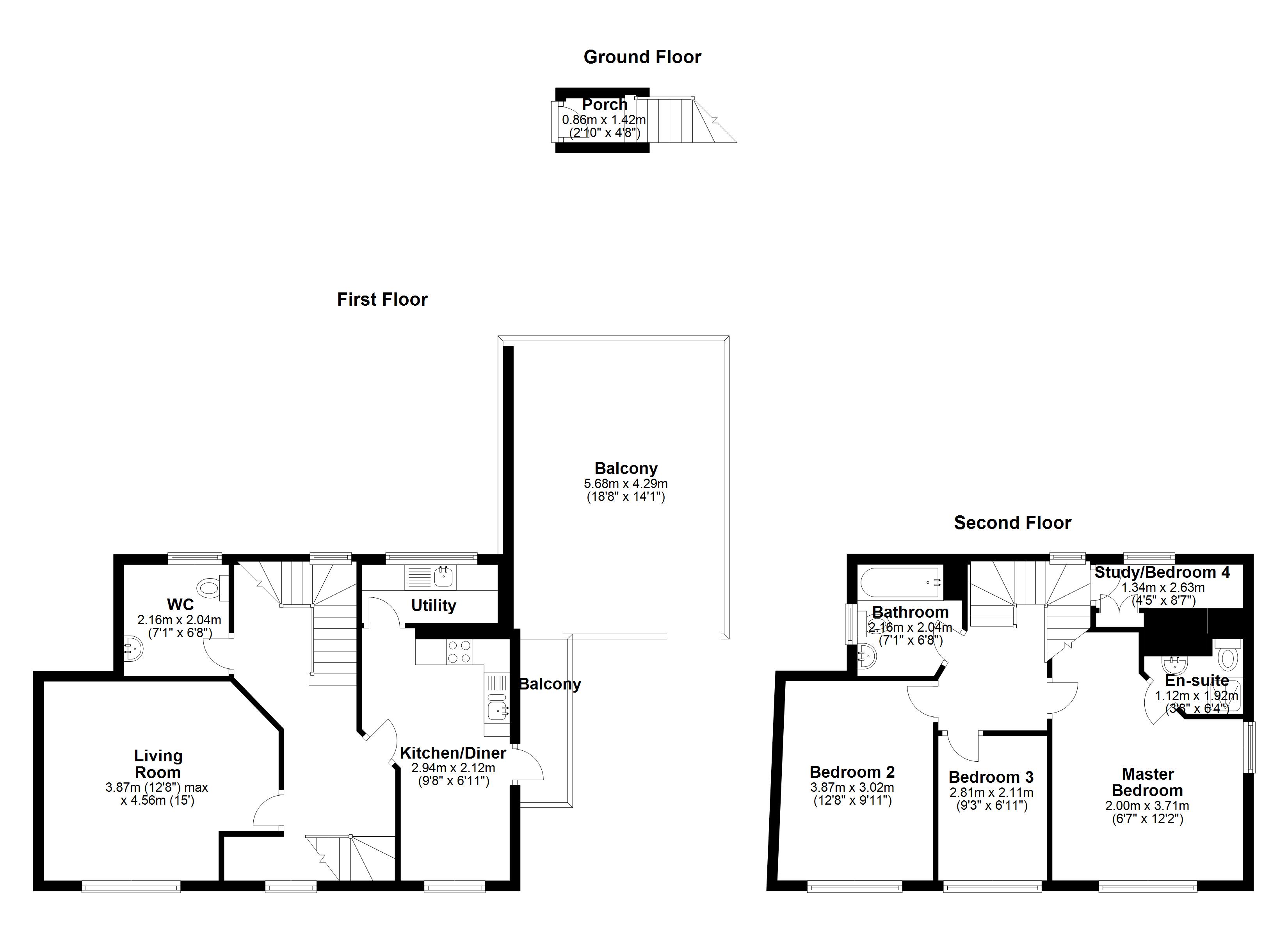
Making your way inside the property, through the front door there are stairs that lead to the first floor. Solid oak doors lead off the spacious hallway to the kitchen, living room and WC.
The kitchen, which is one of the highlights of the property is tastefully fitted with contemporary style grey gloss fronted units and drawers and gloss walnut flooring. There is an integrated dishwasher, four ring Bosch gas hob, glass splash back, stainless steel hood, Bosch electric oven/grill, and a 1.5 bowl stainless steel single drainer sink unit with contemporary style mixer tap. The light and airy kitchen has ample space for a dining table with a door leading to a separate good size utility room. An external door leads to a private roof terrace that offers a fantastic relaxation space.
The reception room offers spacious living space, and finishing the first floor is a contemporary styled WC with matching toilet and washbasin.
A staircase leads from the first-floor landing with useful study area to the second floor landing with an original floor to ceiling window.
The spacious master bedroom has an en-suite shower room fitted with Porcelanosa fittings and tiling with a corner shower cubicle, wash hand basin and WC.
Bedroom two is another great size double with a large window providing ample natural light. Bedroom three is smaller and could be made into a elegant dressing room and bedroom 4 is the smallest room which could also double as a study. Also off the landing is the family bathroom with Porcelanosa fittings, bath with shower above, WC and vanity sink.
A particular feature of the property is an external roof terrace with a synthetic turf layer and steps leading down to a useful external store.
The apartment itself does not have allocated parking but annual parking passes can be bought for reasonable prices from several local carparks.
* Plus 3% Buyers Premium + VAT
The seller of this property may consider a pre-auction offer prior to the auction date. All auction conditions will remain the same for pre-auction offers which include but are not limited to, the special auction conditions which can be viewed within the legal pack, the Buyer’s Premium, and the deposit. To make a pre-auction offer we will require two forms of ID, proof of your ability to purchase the property and complete our auction registration processes online. To find out more information or to make a pre-auction offer please contact us.
Any additional costs will be listed in the Special Conditions within the legal pack and these costs will be payable on completion. The legal pack is available to download free of charge under the ‘LEGAL DOCUMENTS’. Any stamp duty and/or government taxes are not included within the Special Conditions within the legal pack and all potential buyers must make their own investigations.
Four-Bedroom Split Level Apartment
Heart Of Chester City Centre
Undergone A Full Renovation And Re-Configuration
* The Guide Price given is an indication as to where the Reserve is currently set. The Reserve is the minimum price that the auctioneer is authorised by the vendor to sell the property for. It is subject to change throughout the marketing period. Where the Guide Price is a single figure, the current Reserve will not be more than 10% above that single figure, and where a price range is given (i.e. £50,000 - £55,000), the Reserve will not exceed the upper level of the range. It is not necessarily what the auctioneer expects it will sell for.
We would like to point out that all measurements, floor plans and photographs are for guidance purposes only (photographs may be taken with a wide angled/zoom lens), and dimensions, shapes and precise locations may differ to those set out in these sales particulars which are approximate and intended for guidance purposes only.
These particulars, whilst believed to be accurate are set out as a general outline only for guidance and do not constitute any part of an offer or contract. Intending purchasers should not rely on them as statements of representation of fact, but must satisfy themselves by inspection or otherwise as to their accuracy. No person in this firms' employment has the authority to make or give any representation or warranty in respect of the property.
Viewing: Due to the nature and condition of auction properties, the auctioneers highlight the potential risk that viewing such property carries and advise all to proceed with caution and take necessary requirements to ensure their own safety whist viewing any lots offered. Viewings are conducted entirely at the potential buyers own risk, these properties are not owned or controlled by Town & Country Property Auctions and the auctioneers will not be held liable for loss or injury caused while viewing or accessing the lot. Due to the nature of some auction properties, electricity may not be turned on, therefore viewing times are restricted. Viewers will need to bring their own lighting/ ladders if wanting to inspect cupboards, cellars and roof spaces. Some viewings are carried out by third party agents and we will endeavour to give appropriate notice should the published viewing time change. Town & Country Property Auctions will not be liable for any costs or losses incurred due to viewing cancellations or no shows.
All auctioneer fees and deposits stated are non-refundable. The deposit will be applied toward the final purchase price. Auctioneer fees, while not contributing to the purchase price, will still be included in the total chargeable consideration of the property when calculating Stamp Duty Land Tax, Land Transaction Tax, or Land and Buildings Transaction Tax (as applicable depending on whether the property is located in England, Wales, or Scotland).
By setting a proxy bid, the system will automatically bid on your behalf to maintain your position as the highest bidder, up to your proxy bid amount. If you are outbid, you will be notified via email so you can opt to increase your bid if you so choose.
If two of more users place identical bids, the bid that was placed first takes precedence, and this includes proxy bids.
Another bidder placed an automatic proxy bid greater or equal to the bid you have just placed. You will need to bid again to stand a chance of winning.
By subscribing here you agree to receive relevant emails, news and updates from Town & Country Property Auctions. You can unsubscribe at any time.
No fuss, fast & free*
Town and Country offer a free selling service to a growing number of people choosing to sell their property quickly and easily through auction.
*Contact individual regions for cost
How to bid
Our buying at auction guide will help you throughout the process providing you with guidance to confidently secure your purchase.