Fern Bank Villa, Eversley Park, Chester, Cheshire, CH2 2AJ

Ref: Lot 3

Loading the bidding panel...

Registration Guide

Finance available on this property

Unconditional (Buyer's Premium)


UNCONDITIONAL LOT Buyers Premium Applies Upon the fall of the hammer, the Purchaser shall pay a 5% deposit and a 5%+VAT (subject to a minimum of £5,000+VAT) buyers premium and contracts are exchanged. The purchaser is legally bound to buy and the vendor is legally bound to sell the Property/Lot. The auction conditions require a full legal completion 28 days following the auction (unless otherwise stated).

Description

Versatile Property Alert!!
PRE BOOKED OPEN DAYS
Fri 09 Jan14:00 - 14:30 /Fri 23 Jan 14:00 - 14:30
An Opportunity to buy a 3 Bedroomed character townhouse or 1 bed apartment x1 and 2 Bed Apartment x1. A great investment property or family home in a sought after residential area. Call us today for more details 0800 334 5090

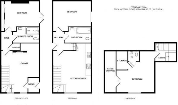
This superbly designed townhouse offers an impressive amount of space set over three floors, and is flooded with original character features. This property was originally two apartments but now comprises of a ground floor that opens into a spacious lounge, family bathroom and a bedroom with double doors opening out onto a private patio/courtyard ideal for outdoor entertaining and for those seeking an al fresco lifestyle. To the first floor the stairs rise into an open-plan kitchen/diner, as well as a second family bathroom and double bedroom. The third floor offers a spacious double bedroom complimented by an en-suite, and in addition has access to a further attic space perfect for future conversion. This period property is in the ideal location for the modern family.Alternatively the property could easily be converted back into two apartments (1x two bedroomed and 1 x one bedroomed)and would make an ideal investment property.

Entrance
Via solid wood front entrance door into:

Porch
Tiled flooring. Door leading into:

Lounge
(6.45m x 5.00m)
Two cast iron radiators. Two sash windows to side elevation with plantation shutters. Feature exposed brick wall. TV point. . Understairs storage cupboard. Stairs rising to first floor landing.

Hallway
Two walk-in storage cupboards. Door giving access to:

Family Bathroom
(3.81m x 1.62m)
Partially tiled walls. Comprising a three-piece bathroom suite to include low level WC, pedestal wash hand basin and a walk-in shower cubicle with electric shower over. Radiator.

Bedroom Three
(4.42m x 4.09m)
Cast iron radiator. Double opening French doors with plantation shutters leading out to the side garden.

Kitchen/Diner
(6.45m x 4.95m)
Comprising a range of modern wall, base and drawer units with work surfaces over. One and a half bowl single drainer sink with mixer tap. Four ring hob with tiling to splashback area and fitted extractor hood above. Integrated Samsung oven and grill. Space and plumbing for washing machine. Integrated dishwasher. Window to side elevation. Recessed spotlighting. Loft access. Partially tiled walls.

Further Hallway
Door to side elevation leading to shared corridor with adjacent property. Stairs rising to second floor

First Floor

Family Bathroom
(3.81m x 1.62m)
Fully tiled flooring. Fully tiled walls. Vintage cast iron radiator. Comprising a three-piece bathroom suite to include low level WC, pedestal wash hand basin with mixer tap and a panelled bath with mains shower over and a further rain-effect shower over with shower screen.

Bedroom Two
(5.05m x 3.91m)
Two Vintage cast iron radiators. Window to side elevation.

Second Floor

Landing
Stairs rising to second floor. Door leading into loft area.

Bedroom One
(4.97m x 3.02m)
Window to side elevation. Generous walk-in eaves storage. Radiator. Walk-in wardrobe.

En-Suite
(1.55m x 1.22m)
Fully tiled flooring. Benefitting from a low level WC and a pedestal wash hand basin with tiling to splashback area.

Exterior
To the front of the property there is a driveway providing ample off-road parking for multiple vehicles. Boasting an array of mature shrubs and trees for added privacy.

Side Courtyard
To the side of the property there is a paved courtyard area with ideal space for garden furniture and outdoor entertaining. Benefitting from well stocked borders with mature shrubs.

The property benefits from an expansive loft space already granted Licence for Alterations, presenting development potential for conversion (subject to any further necessary consents). Situated in a desirable location, the property is perfectly suited to investors, developers, or owner‑occupiers.

Buyers Premium

* Plus 5% Buyers Premium + VAT

Pre Auction Offers Are Considered

The seller of this property may consider a pre-auction offer prior to the auction date.  All auction conditions will remain the same for pre-auction offers which include but are not limited to, the special auction conditions which can be viewed within the legal pack, the Buyer’s Premium, and the deposit.  To make a pre-auction offer we will require two forms of ID, proof of your ability to purchase the property and complete our auction registration processes online.  To find out more information or to make a pre-auction offer please contact us.

Special Conditions

Any additional costs will be listed in the Special Conditions within the legal pack and these costs will be payable on completion. The legal pack is available to download free of charge under the ‘LEGAL DOCUMENTS’.  Any stamp duty and/or government taxes are not included within the Special Conditions within the legal pack and all potential buyers must make their own investigations.

Material Information

Material information will be provided within the legal pack- to download visit our website tcpa.co.uk.

Auctioneer Notes

The vendor reserves the right to withdraw the property for sale before the auction end date. Cash buyers or pre-approved mortgages/finance only.

Key Feature 1

PRE BOOK Open Days Fri 09 Jan 14:00 - 14:30/ Fri 23 Jan 14:00 - 14:30

Key Feature 2

Ideal Investment Property or Family Home

Key Feature 3

Sought after location


* The Guide Price given is an indication as to where the Reserve is currently set. The Reserve is the minimum price that the auctioneer is authorised by the vendor to sell the property for. It is subject to change throughout the marketing period. Where the Guide Price is a single figure, the current Reserve will not be more than 10% above that single figure, and where a price range is given (i.e. £50,000 - £55,000), the Reserve will not exceed the upper level of the range. It is not necessarily what the auctioneer expects it will sell for.

We would like to point out that all measurements, floor plans and photographs are for guidance purposes only (photographs may be taken with a wide angled/zoom lens), and dimensions, shapes and precise locations may differ to those set out in these sales particulars which are approximate and intended for guidance purposes only.

These particulars, whilst believed to be accurate are set out as a general outline only for guidance and do not constitute any part of an offer or contract. Intending purchasers should not rely on them as statements of representation of fact, but must satisfy themselves by inspection or otherwise as to their accuracy. No person in this firms' employment has the authority to make or give any representation or warranty in respect of the property.

Viewing: Due to the nature and condition of auction properties, the auctioneers highlight the potential risk that viewing such property carries and advise all to proceed with caution and take necessary requirements to ensure their own safety whist viewing any lots offered. Viewings are conducted entirely at the potential buyers own risk, these properties are not owned or controlled by Town & Country Property Auctions and the auctioneers will not be held liable for loss or injury caused while viewing or accessing the lot. Due to the nature of some auction properties, electricity may not be turned on, therefore viewing times are restricted. Viewers will need to bring their own lighting/ ladders if wanting to inspect cupboards, cellars and roof spaces. Some viewings are carried out by third party agents and we will endeavour to give appropriate notice should the published viewing time change. Town & Country Property Auctions will not be liable for any costs or losses incurred due to viewing cancellations or no shows.

All auctioneer fees and deposits stated are non-refundable. The deposit will be applied toward the final purchase price. Auctioneer fees, while not contributing to the purchase price, will still be included in the total chargeable consideration of the property when calculating Stamp Duty Land Tax, Land Transaction Tax, or Land and Buildings Transaction Tax (as applicable depending on whether the property is located in England, Wales, or Scotland).

Loading legal documents ...

Register for auction alerts

By subscribing here you agree to receive relevant emails, news and updates from Town & Country Property Auctions. You can unsubscribe at any time.

Register for auction alerts

Selling

No fuss, fast & free*

Town and Country offer a free selling service to a growing number of people choosing to sell their property quickly and easily through auction.

*Contact individual regions for cost

Buying

How to bid

Our buying at auction guide will help you throughout the process providing you with guidance to confidently secure your purchase.