Glythau Isaf, Nantglyn, Nantglyn, Denbigh, Clwyd, LL16 5PH

Ref: Lot 14

Loading the bidding panel...

Registration Guide

Finance available on this property

Contact agent


Town & Country Property Auctions NW, MW, Oswestry & Chester
Town & Country Property Auctions NW, MW, Oswestry & Chester

Unconditional (Buyer's Premium)


UNCONDITIONAL LOT Buyers Premium Applies Upon the fall of the hammer, the Purchaser shall pay a 5% deposit and a 5%+VAT (subject to a minimum of £5,000+VAT) buyers premium and contracts are exchanged. The purchaser is legally bound to buy and the vendor is legally bound to sell the Property/Lot. The auction conditions require a full legal completion 28 days following the auction (unless otherwise stated).

Description

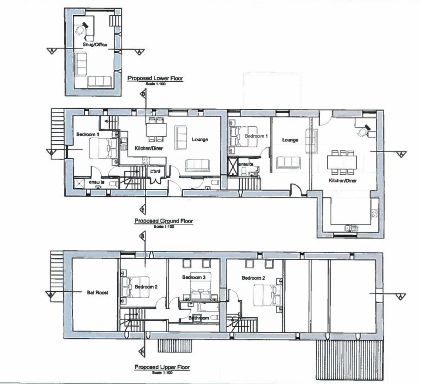
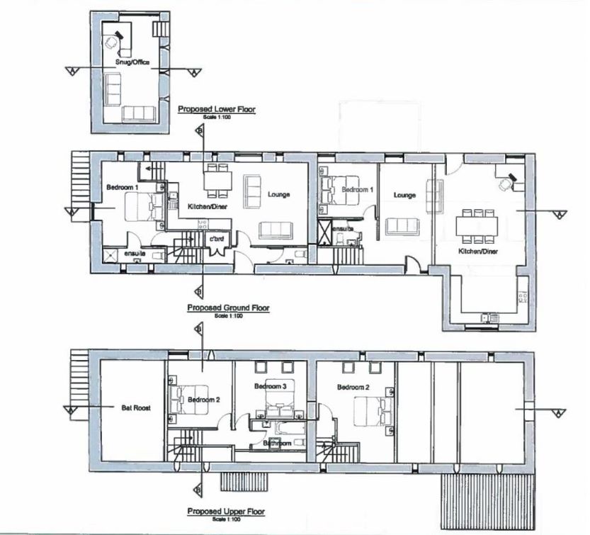
Comprising o 10Acres of Pasture Land, grade ll listed barn with planning for conversion into 1 x2 bedroom and 1 x3 bedroom - Planning Code - wc 0/48716. Located in picturesque valley, 6 miles from Denbigh.

A large Grade II Listed stone barn, benefitting from planning consent for conversion into two residential dwellings. Nestling in a picturesque valley above the pretty village of Nantglyn, some six miles south west of Denbigh and 13 miles from the A55 Expressway at St Asaph. Located off a minor lane about a mile from the village centre, the sale provides an increasingly rare opportunity to develop a large stone built barn with proposed plans for two and three bedroom units, or alternatively, subject to planning consent, into one larger family home.

Location - Nantglyn is a small rural village community situated in a picturesque valley setting some 5.5 miles from the market town of Denbigh. Denbigh provides a good range of facilities catering for most daily requirements to include supermarkets, post office, schools for all ages and leisure facilities. The area is also considered ideal for those wishing to commute throughout the region with the A55 Expressway within easy reach providing ease of access along the North Wales Coast and interlinking with the motorway network beyond. Nearby is the popular Brenig and Alwen Reservoirs with visitor centre and cafe, sailing club, numerous country walks, fishing and mountain bike trails. The area is also within an hour of the Snowdonia National Park.

Planning Consent - Planning consent was obtained from Conwy County Borough Council, on 21/3/2022, under Application Number 0/48716 for 'conversion of existing barn into 2No residential dwellings and associated works (Listed Building Consent)'. A copy of the consent and conditions therein is available either via the Council's web portal or at the Agent's Ruthin Office.

The Building - The building provides a large, mainly stone built former shippon with adjoining stores, part of which is in a poor state of repair, particularly to the roof structure, which is failing and is in a dangerous condition and the building should not be entered under any circumstances.

Bullets

Large Grade II Listed Stone Barn
10 Acres of Pasture Land
Planning Consent for Conversion - Planning Code - wc 0/48716
Located in Picturesque Valley
6 Miles to Denbigh/13 Miles to A55
2 streams one with a footbridge across

Tenure

Freehold

Buyers Premium

* Plus 5% Buyers Premium + VAT

Pre Auction Offers Are Considered

The seller of this property may consider a pre-auction offer prior to the auction date.  All auction conditions will remain the same for pre-auction offers which include but are not limited to, the special auction conditions which can be viewed within the legal pack, the Buyer’s Premium, and the deposit.  To make a pre-auction offer we will require two forms of ID, proof of your ability to purchase the property and complete our auction registration processes online.  To find out more information or to make a pre-auction offer please contact us.

Special Conditions

Any additional costs will be listed in the Special Conditions within the legal pack and these costs will be payable on completion. The legal pack is available to download free of charge under the ‘LEGAL DOCUMENTS’.  Any stamp duty and/or government taxes are not included within the Special Conditions within the legal pack and all potential buyers must make their own investigations.


* The Guide Price given is an indication as to where the Reserve is currently set. The Reserve is the minimum price that the auctioneer is authorised by the vendor to sell the property for. It is subject to change throughout the marketing period. Where the Guide Price is a single figure, the current Reserve will not be more than 10% above that single figure, and where a price range is given (i.e. £50,000 - £55,000), the Reserve will not exceed the upper level of the range. It is not necessarily what the auctioneer expects it will sell for.

We would like to point out that all measurements, floor plans and photographs are for guidance purposes only (photographs may be taken with a wide angled/zoom lens), and dimensions, shapes and precise locations may differ to those set out in these sales particulars which are approximate and intended for guidance purposes only.

These particulars, whilst believed to be accurate are set out as a general outline only for guidance and do not constitute any part of an offer or contract. Intending purchasers should not rely on them as statements of representation of fact, but must satisfy themselves by inspection or otherwise as to their accuracy. No person in this firms' employment has the authority to make or give any representation or warranty in respect of the property.

Viewing: Due to the nature and condition of auction properties, the auctioneers highlight the potential risk that viewing such property carries and advise all to proceed with caution and take necessary requirements to ensure their own safety whist viewing any lots offered. Viewings are conducted entirely at the potential buyers own risk, these properties are not owned or controlled by Town & Country Property Auctions and the auctioneers will not be held liable for loss or injury caused while viewing or accessing the lot. Due to the nature of some auction properties, electricity may not be turned on, therefore viewing times are restricted. Viewers will need to bring their own lighting/ ladders if wanting to inspect cupboards, cellars and roof spaces. Some viewings are carried out by third party agents and we will endeavour to give appropriate notice should the published viewing time change. Town & Country Property Auctions will not be liable for any costs or losses incurred due to viewing cancellations or no shows.

All auctioneer fees and deposits stated are non-refundable. The deposit will be applied toward the final purchase price. Auctioneer fees, while not contributing to the purchase price, will still be included in the total chargeable consideration of the property when calculating Stamp Duty Land Tax, Land Transaction Tax, or Land and Buildings Transaction Tax (as applicable depending on whether the property is located in England, Wales, or Scotland).

Register for auction alerts

By subscribing here you agree to receive relevant emails, news and updates from Town & Country Property Auctions. You can unsubscribe at any time.

Register for auction alerts

Selling

No fuss, fast & free*

Town and Country offer a free selling service to a growing number of people choosing to sell their property quickly and easily through auction.

*Contact individual regions for cost

Buying

How to bid

Our buying at auction guide will help you throughout the process providing you with guidance to confidently secure your purchase.